TD型按JB3926-85《垂直斗式提升機》標準設計制造,目前國內常用的斗式提升機均為垂直式,較新型。斗式提升機適用于垂直輸送粉狀、粒狀及小塊狀且磨琢性較小的散狀物料,如糧食、煤、水泥、碎礦石等,提升高度40m。TD斗式提升機備有四種料斗Q型(淺斗)、H型(弧底斗)、ZD型(中深斗)SD型(深斗)。


TD,D系列斗式提升機適用于輸送粉狀,粒狀及小塊狀的無磨琢性及磨琢性小的物料,如:煤、水泥、石塊、砂、粘土、礦石等,由于其牽引件為橡膠帶,被輸送物料溫度不得超過60℃,如采用耐熱橡膠帶時,溫度不超過120,可廣泛應用于各種規模的飼料廠、面粉廠、米廠、油廠、淀粉廠以及糧庫、港口碼頭等。

TD,D系列斗式提升機提升銅屑
TD,D系列斗式提升機配套料倉,料倉下端接料裝置為LS螺旋輸送機出料

1.驅動功率小,采用流入式喂料、誘導式卸料、大容量的料斗密集型布置.在物料提升時幾乎無回料和挖料現象,因此無效功率少。
2.提升范圍廣,這類提升機對物料的種類、特性要求少,不但能提升一般粉狀、小顆粒狀物料,而且可提升磨琢性較大的物料.密封性好,環境污染少。
3.運行可靠性好,設計原理和加工方法,保證了整機運行的可靠性,無故障時間超過2萬小時。提升高度高.提升機運行平穩,因此可達到較高的提升高度。
4.使用壽命長,提升機的喂料采取流入式,無需用斗挖料,材料之間很少發生擠壓和碰撞現象。本機在設計時保證物料在喂料、卸料時少有撒落,減少了機械磨損。

TD型斗式提升機主要由驅動裝置、上部區段、料斗與橡膠帶、中殼體、帶檢修門的中殼體、下部區段等組成,其主要結構特點是:
1、采用橡膠帶作為牽引構件,具有自重小、撓性好、運行平穩、磨損小的特點
2、殼體之間、檢修門與殼體之間處均設置有密封裝置,保證無粉塵外泄,清潔
3、機殼和頭罩設有多個檢修門,一旦出現故障或者需要更換料斗等易損件時,可以便捷的進行檢修或更換
4、在傳統裝置內部設有高可靠性的逆止機構,在防止牽引件和載料料斗逆行的同時,使傳動裝置整體結構緊湊、占用空間小
5、中部殼體均為折彎構件焊接而成,在提高機殼整體剛度的同時,使機殼各段節具有良好的通用性和互換性,保證組裝完畢后,機殼具有良好的垂直度
6、在底部設有張緊機構,保證工作時皮帶有足夠的預緊力;同時在底部滾筒裝置中帶有自動調心機構,以防止滾筒受到不均勻拉力后發生傾斜,進而造成設備故障.
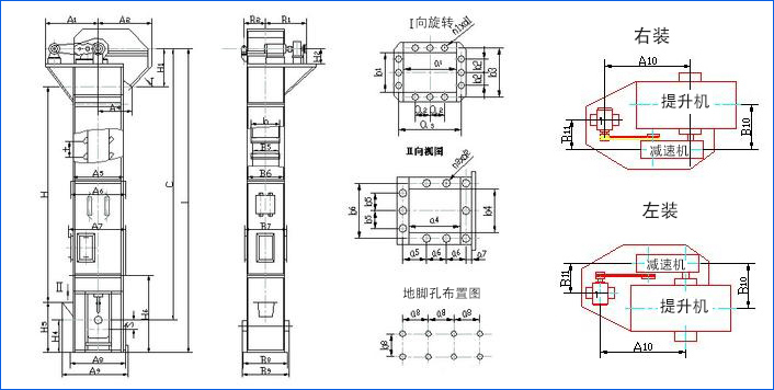
驅動裝置分左裝和右裝兩種,分別與提升機左、右裝對應。
左裝:為人面對進料口,驅動裝置組合和傳動鏈輪在左側。
右裝:為人面對進料口,驅動裝置組合和傳動鏈輪在右側。

TD,D系列斗式提升機斗式提升機的傳動裝置有兩種形式,分別配有YZ型減速型或ZQ(YY)型減速器。YZ型軸裝減速器直接套裝在主軸軸頭上,省去了傳動平臺、聯軸器等,使結構緊湊,重量輕,而且其內部帶有異型輥逆止器,逆止可靠。該減速器噪聲低,運轉平穩,并隨主軸浮動,可消除安裝應力,ZQ(YY)型減速器齒輪傳動圓周速度不大于10米/秒,高速軸的轉速不大于1500轉/分,用于正反兩向運轉,壽命長,而且能力大,強度高,齒面磨損小。
斗式提升機原理視頻
TD,D系列斗式提升機料斗把物料從下面的儲藏中舀起,隨著輸送帶提升到頂部,繞過頂輪后向下翻轉,然后將物料傾入接受槽內。
1、TD,D系列斗式提升機的牽引件是膠帶,料斗間隔一定的距離并且通過螺釘與膠帶固緊。一般用的膠帶有:普通橡膠帶,尼龍芯橡膠帶,鋼繩芯橡膠帶。

普通橡膠帶基本上是用棉織物為帶芯,涂以膠層硫化成型的,通常在提升高度不大的場合中使用。
鋼繩芯橡膠帶是用鋼繩為帶芯,涂以膠層硫化成型的,適合提升量大、提升高度高的場合。
耐熱型橡膠帶可以用于輸送高溫物料,物料不超過150℃。
2、如果發生提升機底部堆料造成設備無法運行的,這有可能是由于提升機瞬間提升量不足造成的;因此,選型時應按較大瞬間提升量來計算。
3、如果固定料斗處的膠帶經常被物料所傷,其原因可能是物料粒度過大(TD型提升機允許物料粒度不大于25mm,但小于5mm更佳),當料斗到達提升機的頭部時,由于膠帶出現張角而使物料夾在料斗與膠帶之間,從而造成膠帶損壞,此時建議選取環鏈提升機。
| 型號 | TD160 | TD250 | TD315 | TD400 | ||||||||||||
| 料斗形式 | Q | h | zD | Sd | Q | h | zD | Sd | Q | h | zD | Sd | Q | h | zD | Sd |
| 輸送量(m3/h) | 5.4 | 9.6 | 9.6 | 16 | 12 | 22 | 23 | 35 | 17 | 30 | 25 | 40 | 24 | 46 | 41 | 66 |
| 斗寬(mm) | 160 | 250 | 315 | 400 | ||||||||||||
| 斗容(L) | 0.5 | 0.9 | 4.2 | 1.9 | 1.3 | 2.2 | 3.0 | 4.6 | 2 | 3.6 | 3.8 | 5.8 | 3.1 | 5.6 | 5.9 | 9.4 |
| 斗距(mm) | 280 | 350 | 360 | 450 | 400 | 500 | 480 | 560 | ||||||||
| 帶寬(mm) | 200 | 300 | 400 | 500 | ||||||||||||
| 斗速(m/s) | 1.4 | 1.6 | 1.6 | 1.8 | ||||||||||||
| 物料量大塊(mm) | 25 | 35 | 45 | 55 | ||||||||||||
| 型號 | TD500 | TD630 | TD160 | TD250 | TD350 | TD450 | ||||||||||
| 料斗形式 | Q | h | zD | Sd | h | zD | Sd | Q | S | Q | S | Q | S | Q | S | |
| 輸送量(m3/h) | 38 | 70 | 58 | 92 | 85 | 89 | 142 | 4.7 | 8 | 18 | 22 | 25 | 42 | 50 | 72 | |
| 斗寬(mm) | 500 | 630 | 160 | 250 | 350 | 450 | ||||||||||
| 斗容(L) | 4.8 | 9 | 9.3 | 15 | 14 | 14.6 | 23.5 | 0.65 | 1.1 | 2.6 | 3.2 | 7 | 7.8 | 14.5 | 15 | |
| 斗距(mm) | 500 | 625 | 710 | 300 | 400 | 500 | 640 | |||||||||
| 帶寬(mm) | 600 | 700 | 200 | 300 | 400 | 500 | ||||||||||
| 斗速(m/s) | 1.8 | 2 | 1 | 1.25 | 1.25 | 1.25 | ||||||||||
| 物料量大塊(mm) | 60 | 70 | 25 | 35 | 45 | 55 | ||||||||||
說明:
1.表中斗容為計算斗容,輸送量按填充系數0.6計算得出。
2.斗提機料斗用途為:
淺料斗:輸送潮濕、易結塊、難拋出的物料。如濕沙、濕煤等。
深料斗:輸送干燥的、松散的、易拋出的物料。如水泥、煤塊、碎石等。
TD-D型斗式提升機各部位潤滑周期:
| 序號 | 潤滑部位 | 潤滑材料 | 潤滑周期 | 潤滑方法 |
| 1 | 傳動及拉緊滾筒軸承 | 耐水潤滑脂 | 200小時 | 利用注油器 |
| 2 | 逆止聯軸器 | 耐水潤滑脂 | 50小時 | 利用注油器 |
| 3 | 拉緊螺栓 | 耐水潤滑脂 | 500小時 | 涂抹 |
| 4 | 電動機 | 耐水潤滑脂 | 6個月 | 35 |


Copyright ? 2008-2019螺旋輸送機廠家-新鄉市大漢振動機械有限公司 All Rights Reserved 版權所有
網站備案號:豫ICP備09002479號-47
網址:http://m.autum.cn/新鄉大漢機械廠家專業生產螺旋輸送機、皮帶輸送機、提升機等機械







